TOPへ戻る

空き家バンク

和歌山県の天然記念物『十五社(じごせ)の樟樹』 まで徒歩4分 小中学校も近く生活しやすい環境

登録番号44

受付中

庭付き

畑付き

駐車
スペース
あり

上水道完備

下水道完備

平屋建て

自然豊か

賃貸 - 売買 500万円
所在地 伊都郡かつらぎ町笠田東 インスペクション実施 実施予定

※上のサムネイル画像をクリックすると
大きく表示されます

物件概要

用途 住居専用 建物構造 木造
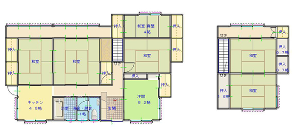
間取り 7DK
1階:和室(8・6・6・4帖)、洋室(5.2帖)、DK(4.5帖)、浴室、トイレ
2階:和室(6・6帖)
延べ床面積 108.60 ㎡
敷地面積 228.11 ㎡ 土地面積計測方式 -
建築面積 - 建築面積計測方式 -
建築時期 増築部昭和62年 空き家になった時期 令和5年頃
補修必要箇所 補修必要 補修の費用負担 利用者

設備等

電気 引込有 風呂 電気
ガス プロパン トイレ 洋式  水洗 下水
水道 公営上水道 キッチン -
冷暖房 - 洗濯機置場 -
駐車スペース 近隣有 家具・家電付 -
特記事項 ※かつらぎ町空家バンクへの[利用登録]が必要です。 付帯物件・空き地等 物置

周辺状況

交通 JR和歌山線笠田駅 徒歩7分(500m)
京奈和自動車道かつらぎ西IC 車5分(1,700m)
周辺施設 かつらぎ町立笠田小学校 徒歩5分(300m)
かつらぎ町立笠田中学校 徒歩10分(650m)
和歌山県立医科大学附属病院紀北分院 車12分(5,700m)
銀行 車4分(1,500m)
郵便局 徒歩1分(52m)
スーパー 車3分(1,000m)
コンビニ 車2分(300m)
マップ

※HP上では物件所在地をピンポイントでご案内しておりません
※ルート検索では、エリア(物件所在地域)への案内となり、大体の所要時間がわかります

一覧へ戻る

お知らせ

  • 年末年始休暇のお知らせ

    空き家コンシェルジュは、下記期間を年末年始休暇とさせていただきます。 年末年始休暇  2025年12月27日(土)~2026年1月4日(日) 御用の方はEメール・留守番電話・FAXにてお問い合わせ下さい。1月5日(月)9時以降に順次ご連絡させていただきます。 なお空き家バンクにご登録いただいている皆様の緊急連絡に関しては各担当の携帯電話までよろしくお願い致します。

  • 新規物件が登録されました

    No.045 かつらぎ町大谷 北と南に広がる山の眺望、スーパーなども徒歩圏内。

  • 空き家セミナー開催のお知らせ

    町内にある空き家の所有者や管理者、将来空き家所有者になる見込みの方を対象に、空き家に関するセミナーを開催します。今住んでいる家をどうしようか悩まれている方にも役立つ内容となっています。ぜひご参加くださいませ。 12月 5日(金)13:30~ 妙寺公民館 12月 5日(金)19:00~ 大谷公民館 12月11日(木)10:00~ 天野地域交流センター 12月11日(木)19:00~ 三谷公民館 12月16日(火)13:30~ 笠田公民館 佐野分館

すべてのお知らせを見る

当空き家バンクに
関するお問合せ

空き家コンシェルジュ
橿原事業所

〒634-0075
奈良県橿原市小房町9-32

TEL 0744-35-6211

営業時間

月曜日~土曜日 9:00~18:00
(12月29日~1月3日除く)

かつらぎ町役場

〒649-7192
和歌山県伊都郡かつらぎ町
大字丁ノ町2160番地

TEL 0736-22-0300

開庁時間

月曜日~金曜日 8:30~17:15
(祝日・12月29日~1月3日除く)

メールでの
お問合せはこちら